2 bedrooms
2 bathrooms
2 receptions
1,248.61 sq ft (116 sq m)
2 bedrooms
2 bathrooms
2 receptions
1,248.61 sq ft (116 sq m)
Taylors Barn, Contemporary Rural Living with Barn‑Inspired Character
(One of the images is an AI-generated projection of the finished home plot 5 and 6)
Pear Tree Farm, Wigmore, Herefordshire
Framed by traditional brickwork and heritage‑style cladding, Plots 6, Taylors Barn brings a sense of crafted rural architecture to the Pear Tree Farm development. Though designed with the character of a barn conversion, these are entirely new homes, created with modern specification, thoughtful layouts and a quiet confidence that sits naturally within their countryside setting.
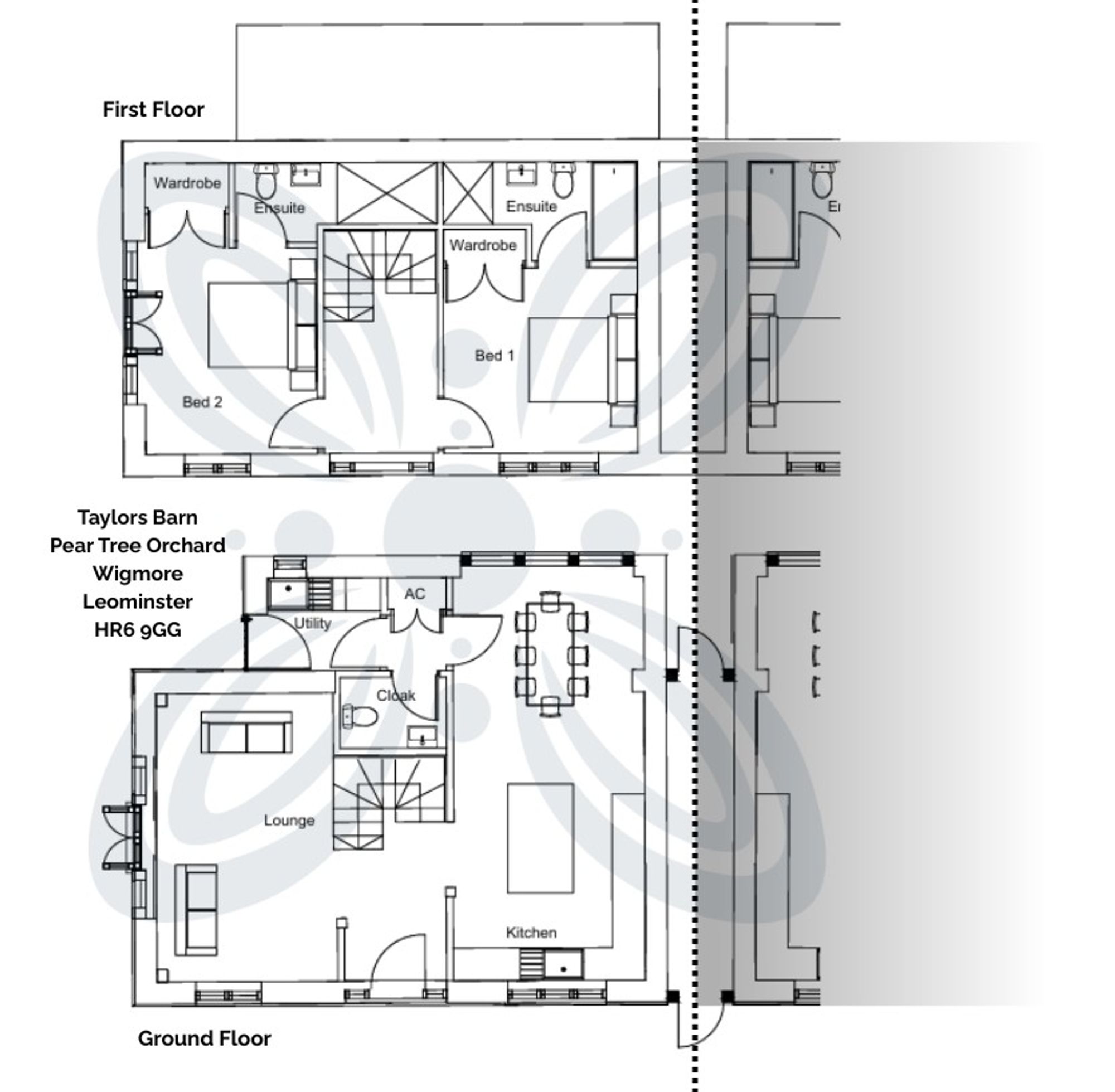
A Welcoming Ground Floor Designed for Everyday Living
The front door opens into a central entrance hall where the stairway sits at the heart of the home. Its gently turning rise draws light from the landing window above, creating a calm and inviting first impression.
To one side, a generous lounge provides a comfortable and versatile living space. A picture window frames the front outlook, while glazed patio doors with side windows open to the garden—filling the room with natural light and offering an easy connection to the outdoors.
To the other side of the hall, the kitchen and dining space unfolds across the depth of the home. Following the same specification as Anjou House, it features:
A Bespoke kitchen with Stone worktops
A central island forming the focal point of the space
Fitted high-end appliances, including induction hob and twin ovens
A dining area with a triple window set overlooking the rear garden
From the dining area, a door leads to a practical secondary hallway with external access, a cloakroom and a dedicated utility/boot room—ideal for rural living.
Two Well‑Proportioned Bedrooms, Each With Its Own Bathroom
The staircase rises and turns to the first floor, where natural light from the landing window sets a calm tone.
Both bedrooms are spacious doubles, each with:
Fitted wardrobe space
Private ensuite facilities
Bedroom One enjoys a striking design feature, a Juliette balcony with central door and windows to either side, plus an additional front window for dual‑aspect light.
Bedroom Two mirrors the generous proportions of the first and includes an ensuite with both bath and separate shower, creating a flexible, guest‑friendly layout.
Specification & Craftsmanship
The homes follow the same specification narrative as Anjou House, including premium finishes, quality materials and a carefully curated interior palette that balances contemporary comfort with a rural architectural feel.
A Thoughtfully Designed Addition to Pear Tree Farm
Set within this exclusive collection of five bespoke homes, Plots 6, Taylors Barn offers an appealing combination of countryside character, modern build quality and interior refinement. With the architecture echoing traditional farmstead forms, these homes promise a timeless setting for contemporary rural living.
Early interest also provides an opportunity, subject to the build stage, to personalise interior finishes and create a home tailored to individual style.
Find the property using What3Words: https://what3words.com///qualified.surcharge.intro
Anti-Money Laundering Checks (AML)
Regulations require us to conduct identity and AML checks and gather information about every buyer's financial circumstances. These checks are essential in fulfilling our Customer Due Diligence obligations, which must be done before any property can be marked as sold subject to contract. The rules are set by law and enforced by trading standards.
We will start these checks once you have made a provisionally agreeable offer on a property. The cost is £80 (exc. VAT). This fee covers the expense of obtaining relevant data and any necessary manual checks and monitoring. It's paid in advance via our onboarding system, Kotini, and is non-refundable.




