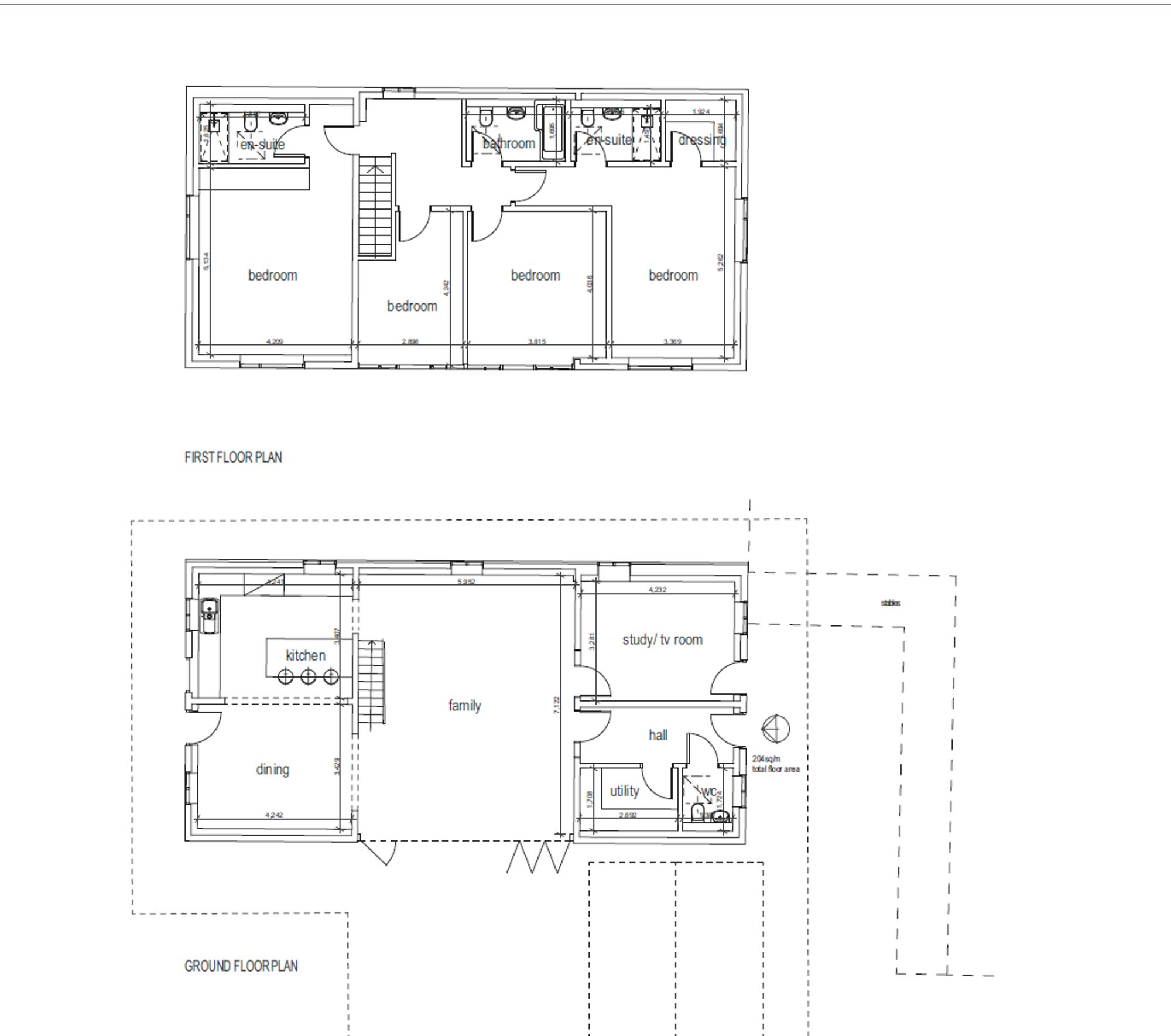
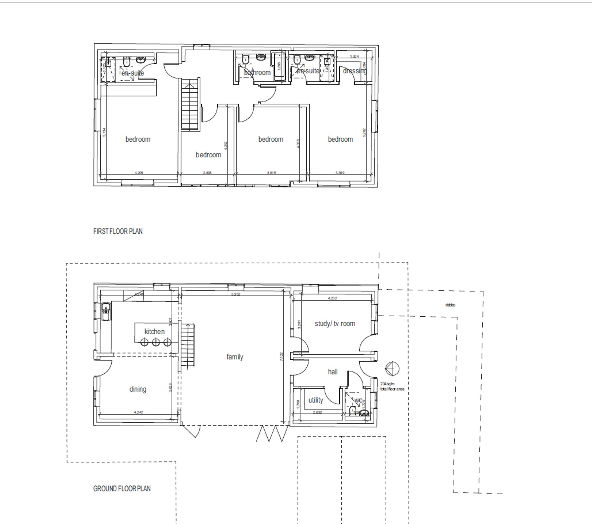
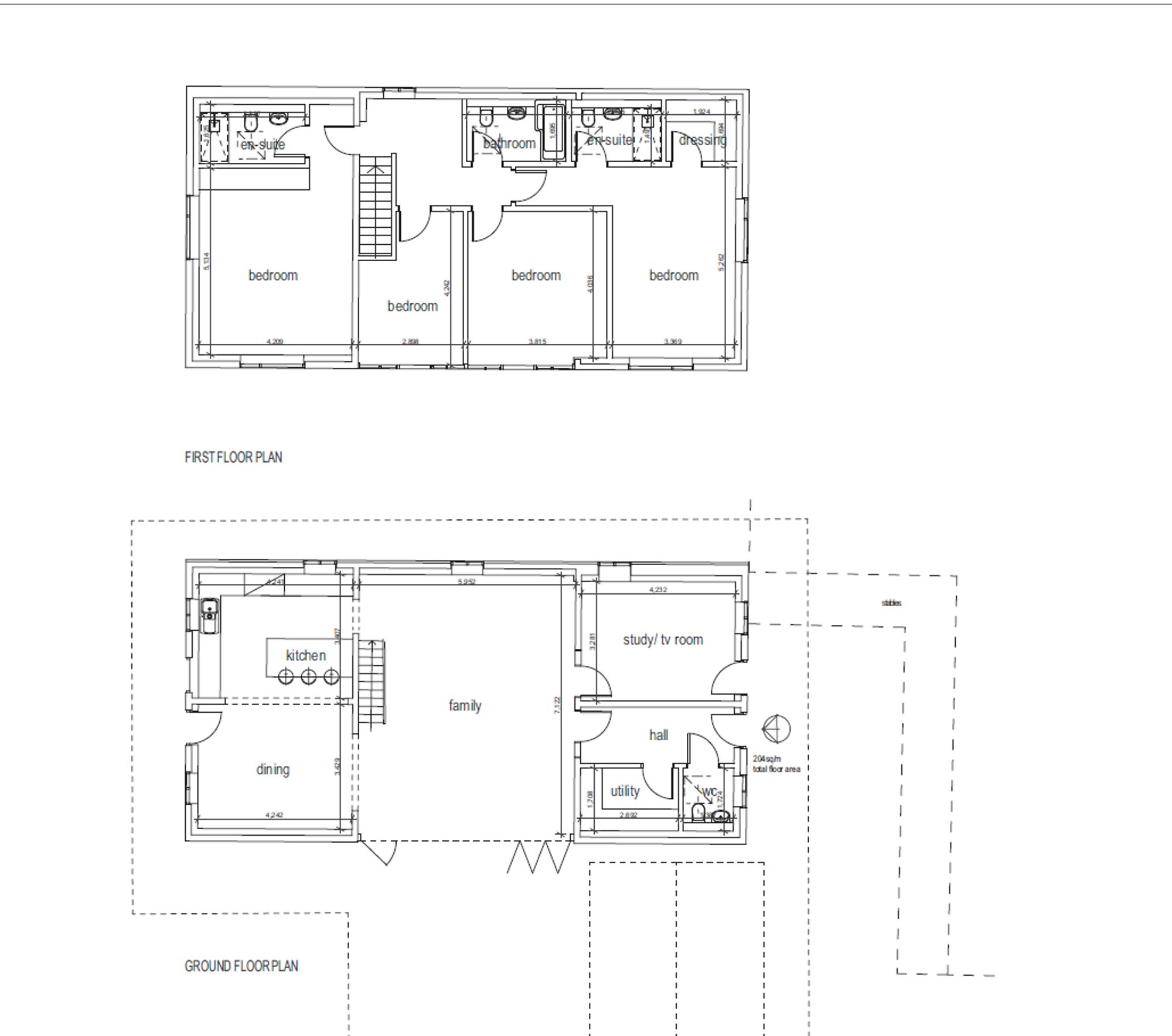
4 bedrooms
3 bathrooms
3143.06 sq ft (292 sq m)
3.50 acres
4 bedrooms
3 bathrooms
3143.06 sq ft (292 sq m)
3.50 acres
FOR SALE VIA ONLINE AUCTION A rare opportunity to acquire a traditional agricultural barn with Class Q planning consent for conversion into a striking four bedroom home, set in approximately 3.5 acres of countryside on the edge of Ombersley, Worcestershire.
The approved plans offer generous living accommodation, making the most of the building’s character and position, with open views, generous grounds, and excellent potential to create a truly individual home. The site also benefits from existing stables, ideal for those with equestrian or lifestyle interests.
Tucked away in a rural yet accessible location, the barn enjoys a peaceful setting within easy reach of Ombersley village, Worcester, and key transport links.
To be sold via online auction. A superb prospect for developers, self builders or buyers looking to create a bespoke countryside residence in a sought after location.
Vendors solicitor contact details: MFG Solicitors, 20-21 The Tything, Worcester, WR1 1HD. Hannah Taylor, Senior Associate, Agricultural and Rural Affairs Email: hannah.taylor@mfgsolicitors.com, Office Tel: 01905 610410
Auction fees: Buyers premium: 3% plus VAT (Minimum £6,000 plus VAT) Deposit: 10% of sale price (payable at the end of the auction)
Please refer to legal pack for any further charges that may apply
For Sale Via Chartwell Noble Online Auction powered by Bamboo Auctions.
Auction end date and time: Tuesday 15th July 12:00pm
The auction will be exclusively available online via our website including the legal pack information.
The registration process is extremely simple and free. Please visit the Chartwell Noble website, and click on the 'online auction' tab.
A 'register' button can be found on this page or by clicking into the individual listing.
Stage 1) Register your email address, create a password and confirm your account.
Stage 2) View the legal pack and arrange any viewings
Stage 3) If you would like to bid, use the 'dashboard' button and complete your ID check and enter your payment and solicitors details
Stage 4) You are ready to bid - Good Luck!
No deposit monies are required before you bid.
Guide price(s) are an indication of the seller's expectation. Reserve price(s) are a figure below which the auctioneer cannot sell the lot at auction. The reserve price is not disclosed and remains confidential between the seller and the auctioneer and is set within the guide range.
A legal pack and special conditions are available to download to anyone who has registered. It is the purchaser's responsibility to make all necessary legal and financial enquiries prior to placing any bids.
Some Vendors may consider offers prior to the auction. These offers can only be submitted via 'Chartwell Noble' and under auction conditions. The complete legal pack would need to be inspected before an offer would be considered.
Please get in touch if you have any questions regarding Online auctions or would like to arrange a viewing.
Location Summary
Situated in the heart of the Worcestershire countryside, Ombersley is an exceptionally sought-after village offering the perfect blend of rural charm and convenience. The area is renowned for its picturesque streets, traditional pubs, independent shops, and a strong sense of community.
The property enjoys a semi-rural setting while benefiting from excellent connectivity as the nearby A449 provides swift access to Worcester (approximately 6 miles south) and Kidderminster (approximately 10 miles north), with the M5 motorway (Junction 5) within easy reach for broader national links.
Ombersley boasts a highly regarded primary school, a choice of dining options including celebrated pubs and restaurants, and beautiful countryside walks right on the doorstep. Further amenities and schooling options are readily available in nearby Droitwich Spa and Worcester.
This enviable location combines accessibility and community spirit, making it ideal for those seeking a lifestyle move with easy access to key Midlands hubs.
What3words: ///wreck.bandaged.forgets

















