1 bedroom
1 bathroom
1 reception
312.15 sq ft (29 sq m)
1,281 sq ft
1 bedroom
1 bathroom
1 reception
312.15 sq ft (29 sq m)
1,281 sq ft
Flat 4, 22 Old Road is a neatly arranged first‑floor apartment within a Grade II listed building, positioned just moments from the centre of Chippenham and the mainline station. Now vacant and ready for immediate occupation, it offers an accessible opportunity for a first‑time buyer, an investor, or anyone seeking a well‑located pied‑à‑terre with character and convenience.
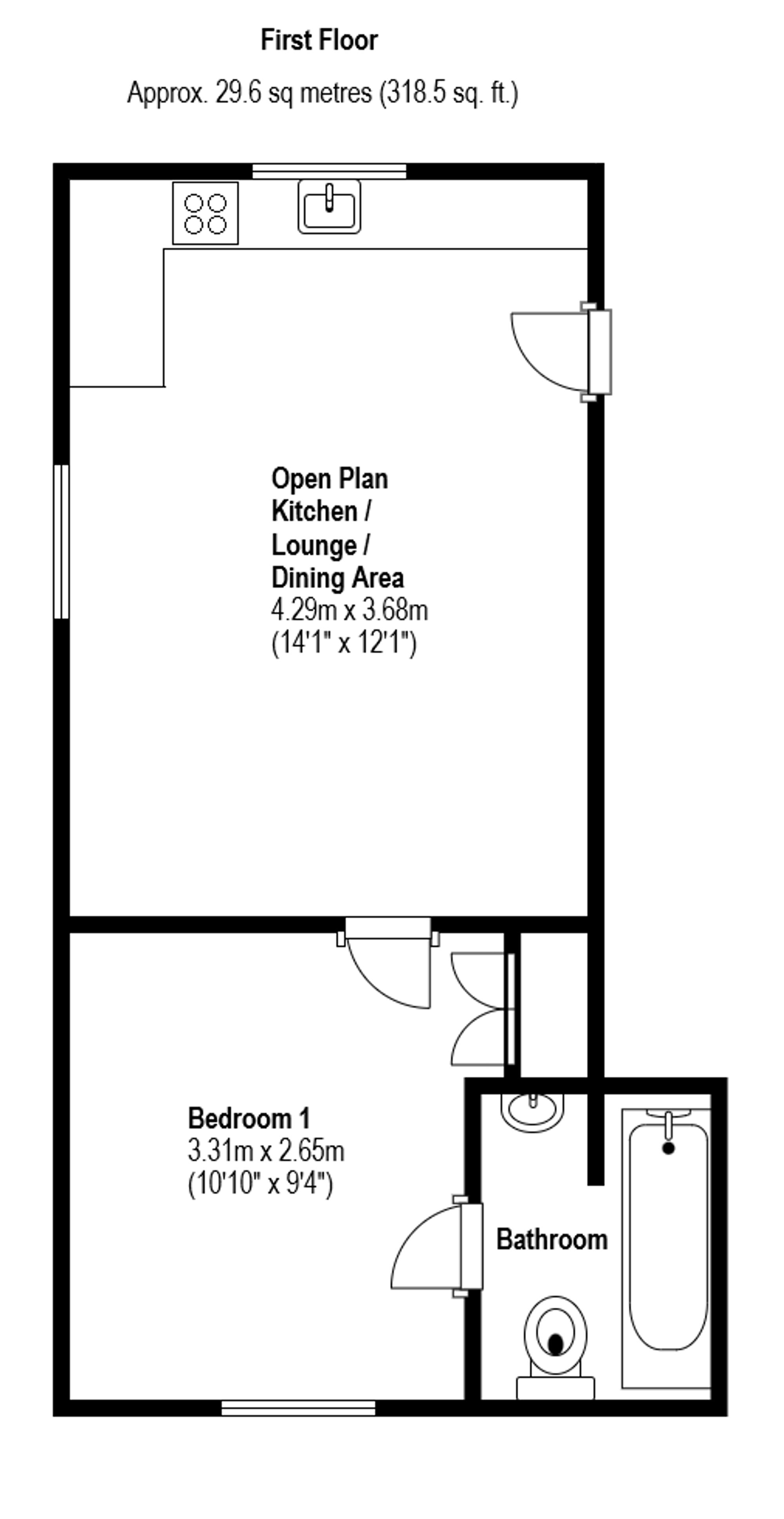
The layout is efficient with an open‑plan kitchen, lounge and dining area forming the natural heart of the home, with good natural light, it is perfectly suited to modern living. The double bedroom includes built‑in wardrobes, and an en-suite bathroom completing a simple, functional arrangement that is easy to maintain.
Its setting is one of its strongest qualities. Old Road sits within a short walk of the town’s amenities, Monkton Park and its riverside walks, and the railway station with regular services to Bath, Bristol and London Paddington. Road connections via the M4, A4 and A420 are equally straightforward. Chippenham’s range of schooling and further education at Wiltshire College further reinforces the town’s appeal.
In all, this is a compact, well‑located home with immediate availability and no onward chain—an uncomplicated purchase in a central and well‑connected position.
Vendors solicitor contact details: Rachel Bayford rachel.bayford@novalegal.co.uk 020 3861 0504
Deposit/Reservation Fee: 2% +VAT (payable at the end of the auction)
For Sale Via Chartwell Noble Online Auction powered by Bamboo Proptech.
Auction end date and time: 20th March 2026
The auction will be exclusively available online via our website including the legal pack information.
The registration process is extremely simple and free. Please visit the Chartwell Noble website, and click on the 'online auction' tab.
A 'register' button can be found on this page or by clicking into the individual listing.
Stage 1) Register your email address, create a password and confirm your account.
Stage 2) View the legal pack and arrange any viewings
Stage 3) If you would like to bid, use the 'dashboard' button and complete your ID check and enter your payment and solicitors details
Stage 4) You are ready to bid - Good Luck!
No deposit monies are required before you bid.
Guide price(s) are an indication of the seller's expectation. Reserve price(s) are a figure in which the auctioneer is not authorised to sell the lot below at auction. The reserve price is not disclosed and remains confidential between the seller and the auctioneer and can be set up to 10% above the guide price.
A legal pack and special conditions are available to download to anyone who has registered. It is the purchaser's responsibility to make all necessary legal and financial enquiries prior to placing any bids.
Some Vendors may consider offers prior to the auction. These offers can only be submitted via 'Chartwell Noble' and under auction conditions. The complete legal pack would need to be inspected before an offer would be considered.
Please get in touch if you have any questions regarding Online auctions or would like to arrange a viewing.
Open Plan Kitchen / Lounge / Dining Area14' 1" x 12' 1" (4.29m x 3.68m)Dual aspect, bright multifunction heart of the home.
Bedroom10' 10" x 8' 8" (3.31m x 2.65m)Generous bedroom with en-suite bathroom and built-in storage.
BathroomEn-suite bathroom
Off Street
Allocated off-street parking at the front of the property.








