4 bedrooms
2 bathrooms
2 receptions
1,700.70 sq ft (158 sq m)
21.27 acres
4 bedrooms
2 bathrooms
2 receptions
1,700.70 sq ft (158 sq m)
21.27 acres
An elegant new home in an exclusive village development, with the opportunity to personalise the finishing touches to make it yours.
This stunning property combines generous proportions, exceptional attention to detail and a harmonious blend of contemporary architecture with timeless style.
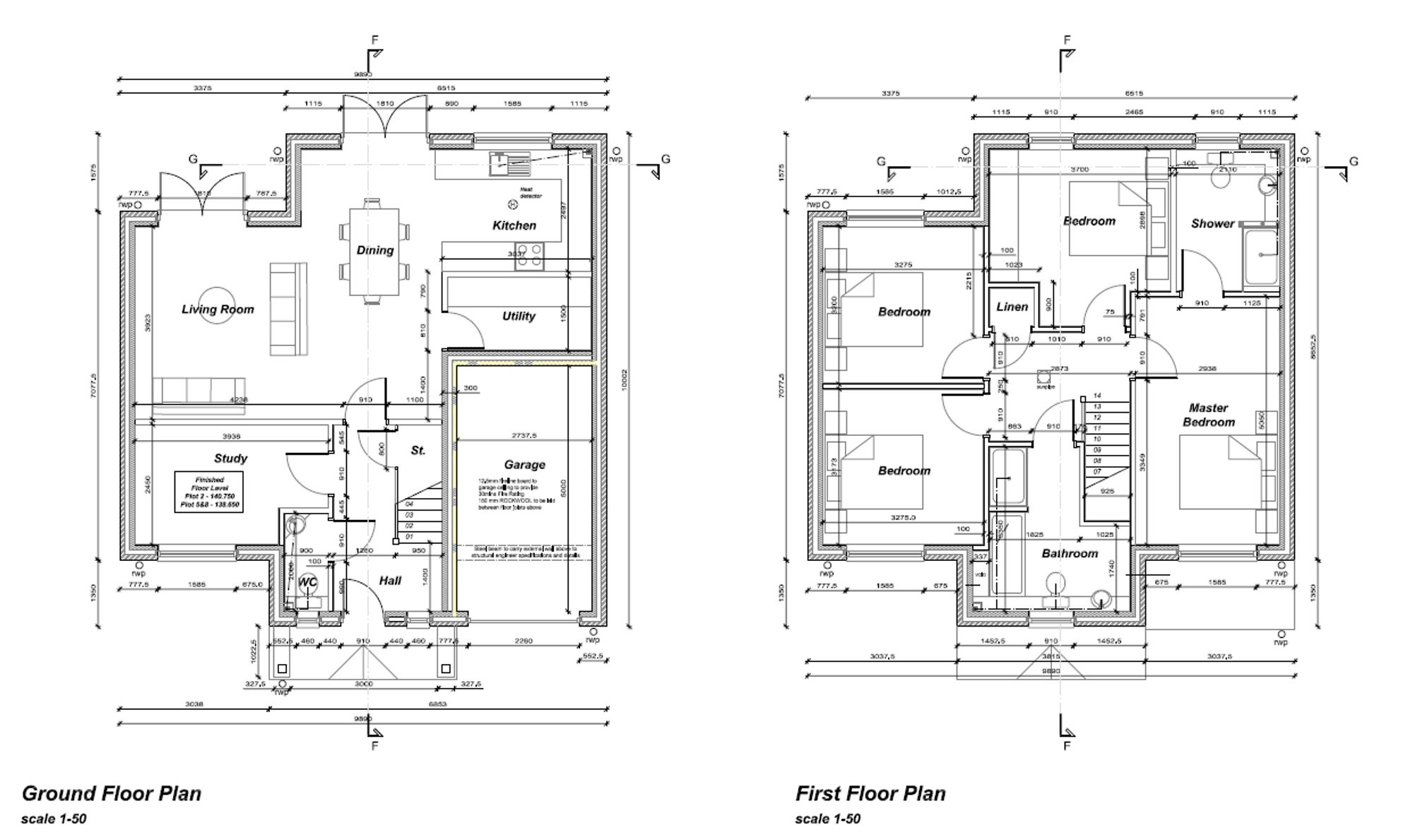
Ground Floor
Step into a welcoming hallway that sets the tone for this elegant home. To one side, a versatile study offers the perfect space for home working or quiet reading, complemented by a convenient WC. The heart of the property is the impressive open-plan kitchen, dining and living area – a light-filled space designed for modern family life and entertaining. A practical utility room provides additional storage and functionality, keeping everyday essentials neatly out of sight.
First Floor
Upstairs, the principal bedroom is a luxurious retreat complete with its own ensuite shower room. Three further bedrooms are generously proportioned, offering flexibility for family, guests or a home office. A stylish family bathroom with a bath and a separate shower ensures comfort and convenience for busy households, while the gallery landing enhances the sense of openness and light throughout.
Outside
The landscaped garden provides a private outdoor haven, perfect for summer entertaining, family gatherings or simply enjoying peaceful moments surrounded by greenery.
Lifestyle & Location
Nestled in the charming village of Woodseaves, you’ll enjoy the tranquillity of picturesque countryside while remaining within easy reach of market towns and transport links. Ample parking and modern energy-efficient features ensure effortless living, while the landscaped garden offers a private outdoor space for family gatherings or quiet moments.
Thoughtfully designed with light-filled spaces and high-spec finishes throughout, this new-build home combines elegance, comfort and practicality, perfect for those seeking space, privacy and the close-knit village community.
Some images have been professionally enhanced using AI technology for optimal clarity and presentation.
Garage
Integral single garage and parking on the driveway






