5 bedrooms
3 bathrooms
3 receptions
2,120.49 sq ft (197 sq m)
5 bedrooms
3 bathrooms
3 receptions
2,120.49 sq ft (197 sq m)
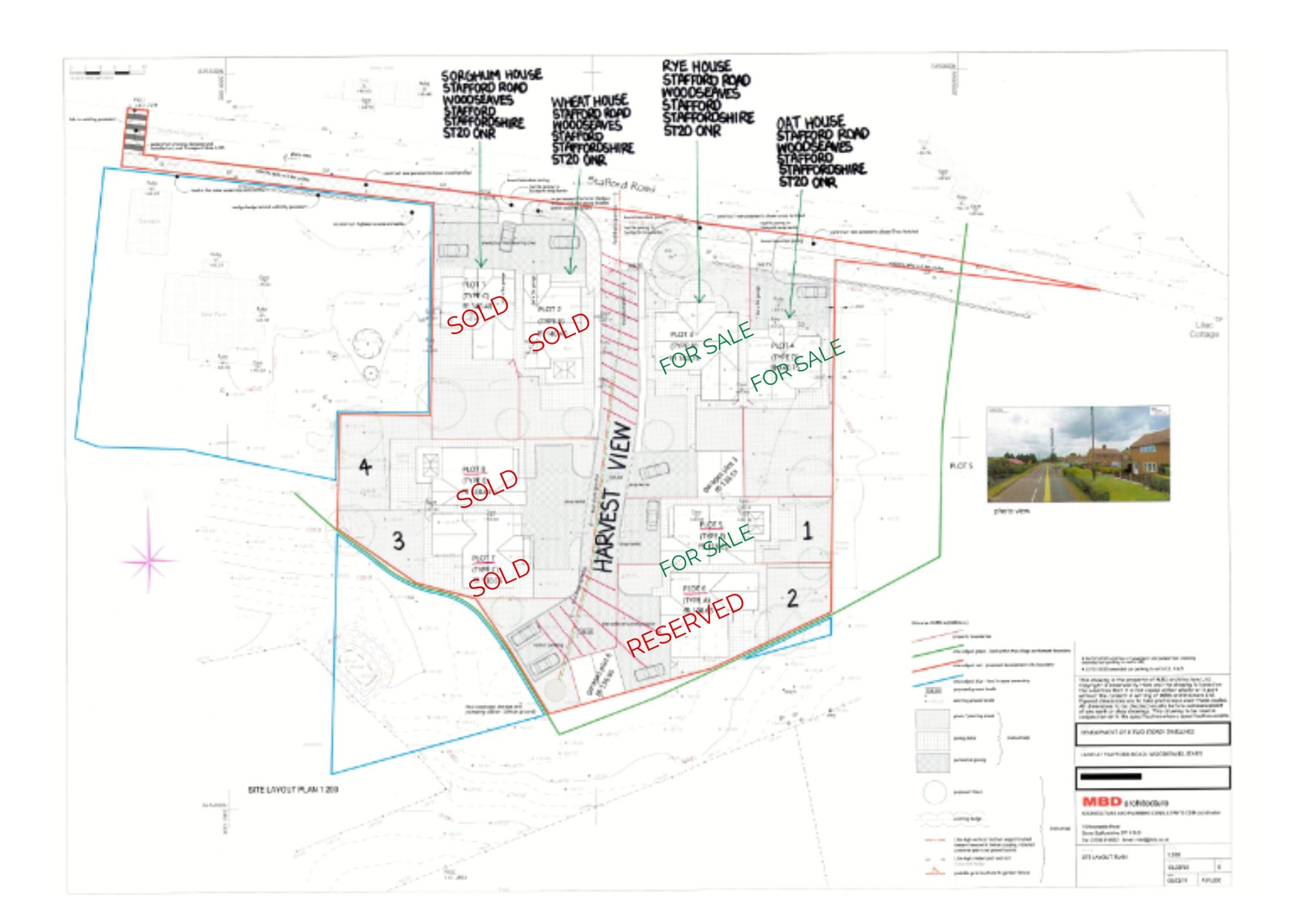
An elegant new home in an exclusive village development, with the opportunity to personalise the finishing touches to make it yours.
This stunning property offers generous proportions, exceptional attention to detail, and a harmonious blend of contemporary architecture with timeless style.
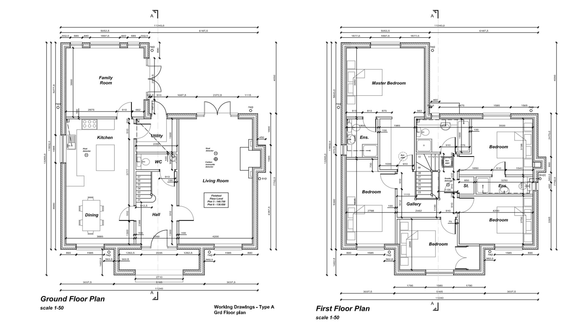
Ground Floor
Step into a welcoming hallway that leads into a bright and spacious living room, perfect for relaxing or entertaining. The heart of the home is the contemporary kitchen, complete with a feature island and integrated appliances, flowing seamlessly into a large family room for sociable everyday living. A dedicated dining area provides ample space for memorable meals, while a practical utility room and convenient WC complete the ground floor.
First Floor
Upstairs, the principal bedroom is a luxurious retreat with its own ensuite. Four additional bedrooms are all generously sized, offering flexibility for family, guests, or a home office. A stylish family bathroom and an extra shower room ensure convenience for busy households, while the gallery landing enhances the sense of openness and light throughout.
Outside
The landscaped garden provides a private outdoor haven, perfect for summer entertaining, family gatherings or simply enjoying peaceful moments surrounded by greenery.
This home is more than a property, it’s a lifestyle. Nestled in the charming village of Woodseaves, you’ll enjoy the tranquillity of picturesque countryside while remaining within easy reach of market towns and transport links. Ample parking and modern energy-efficient features ensure effortless living, while the landscaped garden offers a private outdoor retreat for family gatherings or quiet moments.
Thoughtfully designed with light-filled spaces and high-spec finishes throughout, this new-build home combines elegance, comfort, and practicality, perfect for those seeking space, privacy, and the close-knit village community.
Some images have been professionally enhanced using AI technology for optimal clarity and presentation.
Garage
Detached single garage and 2 parking spaces.












